
脫水斗式提升機簡介:
T/L型脫水式斗式提升機分為脫水式斗式提升機和撈坑式斗式提升機,其中脫水式斗式提升機主要用于洗煤廠對跳汰洗選后的中煤或矸石提升運輸和脫水,撈坑式斗式提升機則用于從撈坑沉淀池中提升大顆粒精煤和細粒煤,并使物料在提升過程中自行脫水。脫水斗式提升機共有八種規格:T3240、T3260、T4060、T4080、T40100、T50100、T50120、T50140。L型撈坑式斗式提升機尾部組件的支承軸承座置于尾部殼體外面,方便檢修。
產品設備特點:
1、結構緊湊,提升高度大、維護方便。
2、運行平穩、脫水效果好。
3、每米斗容量基本按等級數遞增,有利于設備選型。
脫水斗提機工作原理:
脫水斗式提升機的工作過程可分為料斗的裝料過程、料斗的提升過程和料斗的卸料過程三個階段。料斗在裝料過程中是否能裝滿,直接影響到提升機的輸送能力;料斗在提升過程中的提升狀態決定了升運過程的撒料程度;而料斗的卸料狀態則決定了物料的卸空程度,同時也影響功率消耗。
通過以上了解對脫水斗式提升機的要求就是:1、裝料階段裝得滿;2、提升階段升得穩;3、卸料階段卸得凈。研究斗式提升機的工作較為重要的就是要找出實現“裝滿、穩升、卸凈”的條件,以提高提升機的生產能力,降低無效的能耗。
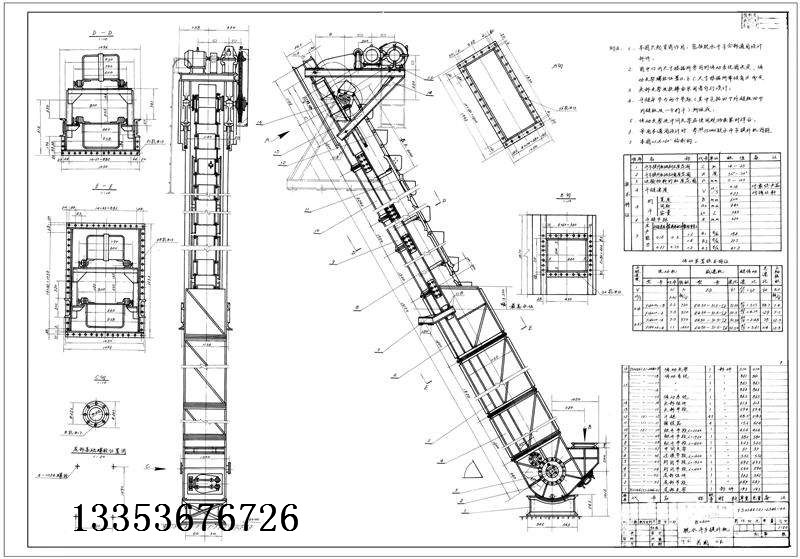
提升機結構:
選型技術參數:
型號
斗寬(mm)
機長(m)
傾斜角(°)
生產能力(t/h)
斗鏈速度(m/s)
T3240
400
20
55-70
15.3-51.3
0.16,0.27
T3260
600
23
55-70
23.0-96.8
0.16,0.27
T4060
600
23
55-70
23.0-96.8
0.16,0.27
T4080
800
23
55-70
38.3-129.2
0.16,0.27
T40100
100
26
55-70
47.8-201.8
0.16,0.27
T50100
100
26
55-70
47.8-201.8
0.16,0.27
T50120
1200
26
55-70
11.3-242.8
0.16,0.27
T50140
1400
23
55-70
83.7-282.5
0.16,0.27
L3240
400
23
60-70
15.9-56.9
0.16,0.27
L4060
600
23
60-70
31.8-80.40
0.16,0.27
L40100
1000
23
60-70
53.0-134
0.16,0.27
L50120
1200
26
60-70
79.2-200.4
0.16,0.27
L50140
1400
26
60-70
92.4-233.7
0.16,0.27
(公司負責需方工藝流程設計、現場地基指導、設備安裝調試、代培技術人員、操作人員一條龍服務。
河南奧創斗式提升機結構圖紙繪畫、價格計算、廠家真機圖片展示,及到廠實地考察接待,歡迎實地考察!
訂購網址請登錄河南奧創機械有限公司官方網站:www.tnxia.com 24小時服務熱線:13353676726